Одноэтажный дом 16 на 17 с гаражом

"Прага"

10.35 млн руб.

В ипотеку от 49.7 тыс./мес.
Общая площадь дома
215.20 м2
Спален
3
Санузлов
2
Габариты
16.40 × 17.20 м
Гараж
34.00 кв.м.
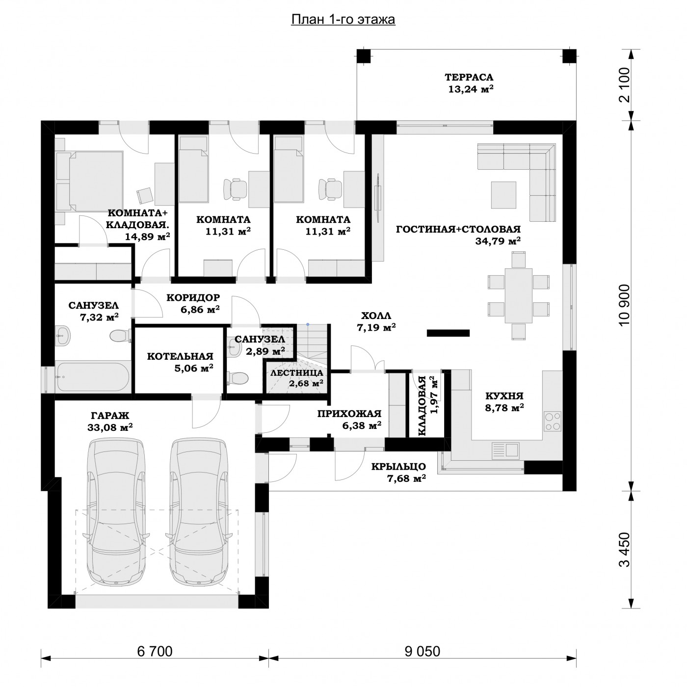
Площадь 1 этажа 162.62 м2

1 этаж

1 прихожая 4,37 м²

2 холл 9,55 м²

3 кладовая 2,09 м²

4 кухня 12,41 м²

5 гостиная + столовая 33,7 м²

6 комната 11,96 м²

7 комната 11,96 м²

8 комната + гардеробная 16 м²

9 санузел 7,2 м²

10 котельная 5,48 м²

11 коридор 6 м²

12 санузел 3,17 м²

13 лестница 4,36 м²

14 гараж 34,37 м²

Всего 162,62 м²

2 Крыша

1 чердак 52,59 м² (175,77 м²)

Всего 52,59 м² (175,77 м²)

Всего: 215,21м² ( 338,39м²)

Проект одноэтажного домаявляется еще одним предложением из серии очень популярных проектов одноэтажных домов от "Рам Вилла". На этот раз это дом с двускатной крышей, простой по конструкции и с несложным блоком. Однако простой блок не является компромиссом - интересные детали, материалы, приятное остекление, которые открывают интерьер сада, создают очень привлекательный дом для одной семьи. Весь дом покрыт прямоугольной двускатной крышей под углом 25 градусов, прикрывающей небольшой чердак, который является дополнительным пространством в доме - магазине «всех вещей». Интерьер дома: все функции расположены на одном уровне, на первом этаже. Из красивого вестибюля мы идем в холл и гостиную с гостиной, столовой и кухней. Кухня с угловым окном открывается в переднюю часть дома. Рядом с кухней кладовая. Из гостиной у нас есть два больших окна - из столовой в сад, и раздвижные балконные двери - на террасу и красивая аркада. Из вестибюля мы идем по коридору до ночной части со спальнями. Есть спальни: родители с гардеробом, и две детские комнаты со встроенными шкафами. Все комнаты имеют выход на террасу. Кроме того, были спроектированы ванная комната и туалет со стиральной машиной и сушилкой. Из зала у нас есть проход через гардеробную к гаражу на две машины и котельной. Мы входим на чердак по лестнице, доступной из зала. Чердак имеет более 60 м2 дополнительной площади. Это может быть просто склад, и со временем вы можете использовать это пространство как пригодный для использования чердак - просто добавьте несколько окон и все! Проект одноэтажного дома 4 был разработан в простом, простом в сборке блоке. Дом имеет компактную планировку, это будет недорогим, чтобы нагреть и дешево в более поздней эксплуатации. Используемые материалы и решения являются энергосберегающими. Проект одноэтажного 4-х этажного дома - это идеальное предложение для Инверторов, которые хотят получить максимальный эффект от вложенных денег. Желая красивую, но также практичную и функциональную квартиру для себя и своей семьи.

Выберите комплектацию

Базовая стоимость:
10.35 млн руб.
Выберите материал стен
Выберите материал кровли

Дополнительные опции

Окна +912.1 тыс. руб.

•    Профиль Rehau ПВХ белый 70мм с замкнутым армированием оцинкованной сталью, толщина стенок;
•    Фурнитура Roto;
•    Энергосберегающий стеклопакет двойной 40мм;
•    Площадь открывных створок не менее 50%, одна створка поворотно -откидная; открывания внуть;
•    Отливы металлические белые.

Коммуникации +1.94 млн руб.

Электромонтаж

  • Кабель ВВГ НГ-Ls
  • Монтаж электрощита
  • Без монтажа розеток и выключателей (только подрозетники)

Инженерные коммуникации

  • Коллекторно – лучевая система отопления
  • Труба PEX – A 16мм
  • Коллекторная группа
  • Радиаторы Kermi
  • Без котла и обвязки
Наружная отделка +1.66 млн руб.

Комбинированная наружная отделка

  • Устройство базового армоштукатурного слоя без маяков толщиной до 5мм
  • финишная отделка фасада декоративной штукатуркой на силикатно - силиконовой основе фактура камешковая/короед.;

Характеристики:

  • Сетка армирующая фасадная 50м2, 5х5 150г/м2;
  • Штукатурка силикатно-силиконовая Ceresit CT 174 камешковая фракция 2 мм 25 кг;
  • Штукатурно - клеевая смесь Ceresit Термо;
Внутренняя черновая отделка +1.96 млн руб.

Внутренняя черновая отделка

  • Устройство утепленной стяжки на 1м этаже
  • Устройство стяжки на втором этаже
  • Оштукатуривание стен гипсовой штукатуркой (во влажных помещениях цементной)
  • Устройство откосов на окнах

Что входит в базовую комплектацию

Фундамент
Фундамент - ребристая плита "перевернутая чаша":
• Толщина плиты – 200мм
• Высота ребра: 300 мм;
• Бетон М350 (В25)
• Рабочая арматура А500С – 12мм
• Армирование плиты в два уровня ячейкой 200х200мм
• Гидроизоляция плиты – профилированная мембрана Planter
. Щебеночное основание 100мм
• Песчаная подушка – 300мм
• Геотекстиль по основанию песчаной подушки
• Закладные трубы коммуникаций
• Устройство канализационной трассы с выводом за пределы фундамента;
Стены несущие
Стены несущие газобетон / теплая керамика
• Наружные стены 400мм газобетон / 440мм керамика
• Внутренние несущие стены 200мм газобетон / 200мм керамика
• Блоки газобетонные Bonolit D500; / Теплая керамика Porotherm
• Кладка на тонкошовный клей; / Теплый раствор
• Черновая высота потолка 3,0м
• Утепленный монолитный армопояс
• Утепленные монолитные перемычки
• Армирование кладки через каждые 3 ряда - А3 d6мм; 
Перегородки межкомнатные
Перегородки межкомнатные газобетон / теплая керамика
• Толщина перегородок 100мм газобетон Bonolit/ 120мм керамика Porotherm
Чердачное перекрытие
Перекрытие чердачное – утепленное по лагам
• Лаги перекрытия – доска обрезная 200х50мм
• Утепление – 200 мм минеральная вата KNAUF
• Пароизоляционная мембрана
• Гидро-ветрозащитная мембрана
• Обрешетка шаговая из обрезной доски 100х25мм
Крыша
Крыша холодная - металлочерепица / гибкая черепица
• Стропила – доска обрезная 150х50мм
• Контробрешетка – брусок обрезной 40х40мм
• Шаговая обрешетка – обрезная доска 100х25мм
• Гидроизоляционная мембрана
• Кровля – металлочерепица Монтерей РЕ 0,45 Grandline/ Гибкая черепица Shinglas Ранчо по OSB 9мм
• Снегозадержатели трубчатые
• Кол-во вентвыходов.: 3 шт;
Крыльцо и террасы
Устройство террас и крылец выполняется в уровень с крышей.

Патио в расчеты не входит
Проектная документация
• Архитектурные решения(АР)
• Конструктивные решения(КР)
Услуги
• Подготовка к началу работ
• Установка бытовки
• Установка Биотуалета
• Проживание бригад
• Уборка территории и вывоз мусора по окончанию работ
• Доставка материалов по Московской обл.
10.35 млн руб.
Заказать
В стоимость входит:
Проект дома
Строгий технадзор
Видеонаблюдение 24/7
10 лет гарантии
Опытный прораб
Бригада из России
Личный менеджер
Профессиональный архитектор

Ознакомьтесь с этапами строительства вашего дома

Согласование всех вопросов и нюансов перед началом работ
Этап 1
Время: от 1 дня
Согласование всех вопросов и нюансов перед началом работ
В первый этап входит:
  • Выбор проекта дома, количества и высоты этажей;
  • Выбор материалов для строительства дома;
  • Расчет сметы;
Первый этап предоставляет возможность ознакомиться с преимуществами сотрудничества с нами без каких-либо обязательств.
Подбор проекта по вашим потребностям и желаниям или разработаем индивидуальный
Этап 2
Время: от 7 дней
Подбор проекта по вашим потребностям и желаниям или разработаем индивидуальный
Детали проекта:
  • Планировка и размещение помещений;
  • Экстерьер и фасад;
  • Инженерные системы;
  • Безопасность и энергоэффективность;
  • 3D визуализация будущего дома;
В любой типовой проект можно внести изменения по вашему желанию.
Устройство фундамента будущего дома
Этап 3
Время: от 7 дней
Устройство фундамента будущего дома
Какие работы производятся:
  • Подготовка площадки;
  • Устройство опалубки;
  • Установка арматуры;
  • Подготовка бетонной смеси;
  • Заливка бетонной смеси;
  • Уход за бетоном;
Все работы производятся с соблюдением строительных норм и правил, чтобы обеспечить долговечность и безопасность здания.
Возведение стен
Этап 4
Время: от 10 дней
Возведение стен
Материалы строительства стен могут такими:
  • Блоки (газоблок, керамический блок, пеноблок, арболит и т.д.);
  • Кирпич;
  • Монолитная технология;
  • Сборно-монолитные;
  • Каркасно-панельные;
От выбранного материала для строительства коробки дома зависят сроки строительства.
Установка крыши
Этап 5
Время: от 14 дней
Установка крыши
Этапы работ для классической кровли:
  • Строительство стропильной системы в зависимости от выбранного варианты крыши (скатная, вальмовая и другие);
  • Установка изоляционного слоя кровли;
  • Укладка кровельного материала (металлочерепица, вальмовая, профнастил, мягкая кровля и т.д.);
Плоская кровля:
  • Установка изоляционного слоя кровли;
  • Утепление монолитного перекрытия;
  • Укладка кровельного материала – ПВХ мембрана;
Сроки установки зависят от сложности проекта и выбранного материала кровли.
Внешние отделочные работы
Этап 6
Время: от 14 дней
Внешние отделочные работы
Что входит в работы:
  • Установка окон;
  • Установка дверей;
  • Фасадные работы;
Двери, окна и фасад определяются с заказчиком заранее и уже заложены в смете.
Уже реализованные проекты
Почему выбирают нас
Отзывы наших клиентов
Все отзывы

Похожие проекты

Хотите увидеть одну из наших действующих строек?

Приезжайте и лично убедитесь в нашей компетентности. Оставьте контакты и мы пригласим вас на объект.

Внимание! Все поля обязательны для заполнения.
Отправляя форму, вы соглашаетесь с Политикой обработки данных

Часто задаваемые вопросы
У нас свой проект. Построите?

Конечно. Наш менеджер сможет рассчитать сроки строительства дома, а так же его стоимость. При необходимости еще до заключения договора мы отрисуем дом в специальной программе и вы сможете прогуляться по его комнатам в виртуальном пространстве.

Предоставляете гарантию на построенный дом?

Гарантия до 10 лет на построенные нашей компанией дома. Мы уверены в профессионализме наших сотрудников и партнеров, которые поставляют нам строительные материалы и остуществляют работы.

Какая будет доплата, если стоимость материалов изменится?

Мы работаем по договору в котором фиксируем цену - никаких доплат не будет, даже если стоимость матерала вырастет в 1,5-2 раза. Мы имеем резервы материалов, которые приобрели еще по старым ценам.

У меня нет всей суммы на строительство. Есть ли у вас ипотечные программы?

Мы работаем со Сбербанком и другими кредитными организациями. При оформлении заявки на нашем сайте, сообщите нашему менеджеру, что планируете взять кредит через нашу компанию и он сориентирует вас по срокам и ставкам.

Нужно заплатить всю сумму сразу или можно платить частями?

В нашей компании гибкая система платежей. Изначально идет оплатата разработку проекта, затем идут поэтапные платежи. Например: 80% за работы и материалы по фундаменту, оставшуюся часть после сдачи фундамента, далее стены первого этажа, перекрытие, второй этаж, крыша и окна оплачиваются по такой же схеме - поэтапно.

Можно посмотреть на ваши работы?

Конечно, мы строим по всей Московской области. При общении с менеджером сообщите ему, что вы хотели бы посетить один или несколько объектов и он подберет вам наиболее подходящие по вашему месторасположению.

Чем вы лучше других?

Для полной прозрачности мы устанавливаем камеры видеонаблюдения на участке. Предоставляем доступ к специальной программе на телефоне. Вы в режиме 24/7 сможете наблюдать за всеми строительными объектами и при возникновении вопросов звонить прорабу и получать разъяснения.

Мы - компания полного цикла. Мы берем проект от идеи, до полного воплощения на участке. За нами не приходится доделывать работу. Например крышу мы заканчиваем полностью (подшиваем софитами, устанавливаем снегозадержатели, водосточную систему).

Даже в самые нелегкие времена мы фиксируем цену на строительство. Мы понимаем, что нашим Заказчикам комфортнее сразу знать, сколько они в итоге заплатят, без подводных камней. Мы предоставляем расчет и готовы строить по ранее оговоренной цене. Цену мы фиксируем в договоре подряда.

Из каких материалов строите?

Мы строим каменные дома из газобетона и керамических блоков. В работе используем проверенных производителей, таких как Бонолит, Ytong, Wienerberger, Технониколь и др.

Каковы сроки строительства?

Здесь многое зависит от различных факторов: например погоды, уровня грунтовых вод, уклона на участке, сложности заезда, площади дома и прочих условий. В среднем строительство дома из газобетона в два этажа 100 - 150 м2 занимает 3 - 4 месяца.

Рассчитаем стоимость строительства вашего дома за 1 день | Оставьте заявку