Новый проект

Готовая модульная баня 7 на 6 с террасой

Модульная баня МБ-3

1.98 млн руб.

В ипотеку от 9.5 тыс./мес.
Общая площадь дома
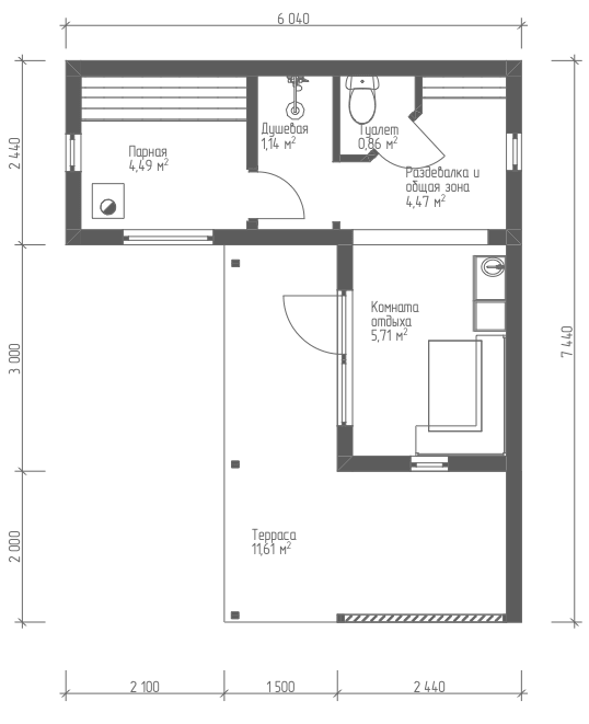
28.28 м2
Отапливаемая площадь
16.67 м2
Площадь террас и крылец
11.61 м2
Спален
1
Санузлов
1
Габариты
7.44 × 6.04 м
Гараж
нет

Купель и другие подарки

Купель и другие подарки
Срок действия: до 31 мая
Купель и другие подарки
Панно из можжевельника
Купель и другие подарки
Фундамент на винтовых сваях
Купель и другие подарки
"Шайка" для бани
Площадь 1 этажа 28.28 м2

 

Модульная баня 7×6 метров с террасой — это полноценный загородный SPA-комплекс, сочетающий простор, функциональность и премиальный уровень комфорта. Баня поставляется в виде готового модуля с полной внутренней отделкой и устанавливается на участке в кратчайшие сроки без длительного строительства.

Формат 7×6 — это уже не просто баня, а отдельное пространство для отдыха площадью около 35–42 м², где можно комфортно разместить до 6 человек. В отличие от компактных решений, здесь реализована полноценная зона релакса, включая террасу и дополнительные опции.


Преимущества бани 7×6 с террасой

  • Флагманский формат — максимум пространства и комфорта
  • Терраса под навесом — зона отдыха на свежем воздухе
  • SPA-концепция — возможность установки купели (фурако)
  • Быстрая установка — монтаж за 1 день
  • Готовность к эксплуатации — все включено в комплектацию
  • Круглогодичное использование — утепление 100–150 мм

Такая баня становится центром притяжения на участке и полноценной альтернативой отдельному дому отдыха.


Планировка и функционал

Проект 7×6 продуман как многофункциональное пространство:

  • Просторная парная с полками из липы
  • Душевая зона с отделкой и оборудованием
  • Большая комната отдыха
  • Терраса для отдыха и приема гостей
  • Возможность установки купели (фурако) под навесом
  • Панорамные окна для естественного освещения
  • Дровяная печь (например, Harvia)

За счёт увеличенной площади баня обеспечивает комфортное использование как для семьи, так и для компаний или коммерческого использования.


Материалы и технология строительства

Баня производится на заводе по каркасной технологии с высоким уровнем контроля качества:

  • Натуральная древесина (сосна, липа, осина)
  • Утепление 100–150 мм для зимней эксплуатации
  • Фасад из планкена с защитным покрытием
  • Панорамное остекление
  • Винтовые сваи в качестве основания
  • Скрытые инженерные коммуникации

Заводская сборка обеспечивает точную геометрию, надежность и долговечность конструкции.


Кому подойдет баня 7×6

  • Владельцам загородных домов премиум-сегмента
  • Тем, кто хочет баню с террасой и купелью
  • Бизнесу (глэмпинг, аренда, базы отдыха)
  • Инвесторам в доходную недвижимость
  • Покупателям, которым важен комфорт и статус

Баня такого формата часто используется не только для личного отдыха, но и как коммерческий продукт с высокой окупаемостью.


Купить модульную баню 7×6 под ключ

Вы можете купить готовую модульную баню 7×6 с террасой с доставкой и установкой. Производство на заводе гарантирует стабильное качество, а готовая комплектация позволяет начать эксплуатацию сразу после подключения коммуникаций.

Это решение для тех, кто хочет получить полноценный банный комплекс без долгого строительства и с прогнозируемым бюджетом.

Выберите комплектацию

Базовая стоимость:
1.98 млн руб.

Что входит в базовую комплектацию

Готовые модули
- Каркас из сухой строганной доски
- Утеплитель 100 мм
- Утепление парной 150 мм
- Утепление пола и потолка 150 мм
- Обрешетка
- Высота модуля 2.5 метра
- Ширина модуля 2.4 метра
- Длина одного модуля 6 метров
Модули террас
- Каркас из сухой строганной доски
- Покрытие пола из крашенной доски
- Перголы террасы из бруса
Внутренняя отделка
- Планкен из липы в парной (вагонка)
- Потолок - вагонка
- Планкен из липы в корридоре и зоне отдыха (Планкен хвойных пород)
- Душевая - ПВХ плитка
- Пол - ПВХ плитка
Сантехника
- Скрытый подвод воды в зону отдыха и душевую
- Душевой поддон
- Тропический душ с лейкой
- Бойлер на 30 литров
- Туалет и рукомойник (для моделей с ними)
Электрика
- Скрытая разводка электрики
- Контурная подсветка в коридоре, комнате отдыха
- LED подсветка контурная в парной
- Светильники в парной
- Розетки в комнате отдыха
Наружная отделка
- Окрашенный планкен (как на картинке)
Мебель
- 2 Полки из липы в парной
- 2 скамейки из доски хвойных пород в зоне отдыха
- 1 Стол из доски хвойных пород
Окна и двери
- Окна из ПВХ профиля
- Безрамное панорамное окно в парной
- Поворотно-откидные окна в парной и зоне отдыха
- Матовая стеклянная дверь в парную
Печь
- Каменная дровяная печь Harvia 16 s
- Защитный экран
- Дымоход
Доставка и монтаж
- Монтаж на фундамент с подключением к сетям
1.98 млн руб.
Заказать
В стоимость входит:
Проект дома
Строгий технадзор
Видеонаблюдение 24/7
10 лет гарантии
Опытный прораб
Бригада из России
Личный менеджер
Профессиональный архитектор
Уже реализованные проекты

Похожие проекты

Хотите увидеть одну из наших действующих строек?

Приезжайте и лично убедитесь в нашей компетентности. Оставьте контакты и мы пригласим вас на объект.

Внимание! Все поля обязательны для заполнения.
Отправляя форму, вы соглашаетесь с Политикой обработки данных

Часто задаваемые вопросы
У нас свой проект. Построите?

Конечно. Наш менеджер сможет рассчитать сроки строительства дома, а так же его стоимость. При необходимости еще до заключения договора мы отрисуем дом в специальной программе и вы сможете прогуляться по его комнатам в виртуальном пространстве.

Предоставляете гарантию на построенный дом?

Гарантия до 10 лет на построенные нашей компанией дома. Мы уверены в профессионализме наших сотрудников и партнеров, которые поставляют нам строительные материалы и остуществляют работы.

Какая будет доплата, если стоимость материалов изменится?

Мы работаем по договору в котором фиксируем цену - никаких доплат не будет, даже если стоимость матерала вырастет в 1,5-2 раза. Мы имеем резервы материалов, которые приобрели еще по старым ценам.

У меня нет всей суммы на строительство. Есть ли у вас ипотечные программы?

Мы работаем со Сбербанком и другими кредитными организациями. При оформлении заявки на нашем сайте, сообщите нашему менеджеру, что планируете взять кредит через нашу компанию и он сориентирует вас по срокам и ставкам.

Нужно заплатить всю сумму сразу или можно платить частями?

В нашей компании гибкая система платежей. Изначально идет оплатата разработку проекта, затем идут поэтапные платежи. Например: 80% за работы и материалы по фундаменту, оставшуюся часть после сдачи фундамента, далее стены первого этажа, перекрытие, второй этаж, крыша и окна оплачиваются по такой же схеме - поэтапно.

Можно посмотреть на ваши работы?

Конечно, мы строим по всей Московской области. При общении с менеджером сообщите ему, что вы хотели бы посетить один или несколько объектов и он подберет вам наиболее подходящие по вашему месторасположению.

Чем вы лучше других?

Для полной прозрачности мы устанавливаем камеры видеонаблюдения на участке. Предоставляем доступ к специальной программе на телефоне. Вы в режиме 24/7 сможете наблюдать за всеми строительными объектами и при возникновении вопросов звонить прорабу и получать разъяснения.

Мы - компания полного цикла. Мы берем проект от идеи, до полного воплощения на участке. За нами не приходится доделывать работу. Например крышу мы заканчиваем полностью (подшиваем софитами, устанавливаем снегозадержатели, водосточную систему).

Даже в самые нелегкие времена мы фиксируем цену на строительство. Мы понимаем, что нашим Заказчикам комфортнее сразу знать, сколько они в итоге заплатят, без подводных камней. Мы предоставляем расчет и готовы строить по ранее оговоренной цене. Цену мы фиксируем в договоре подряда.

Из каких материалов строите?

Мы строим каменные дома из газобетона и керамических блоков. В работе используем проверенных производителей, таких как Бонолит, Ytong, Wienerberger, Технониколь и др.

Каковы сроки строительства?

Здесь многое зависит от различных факторов: например погоды, уровня грунтовых вод, уклона на участке, сложности заезда, площади дома и прочих условий. В среднем строительство дома из газобетона в два этажа 100 - 150 м2 занимает 3 - 4 месяца.

Парьтесь в своей готовой бане | Доставка и монтаж за 1 день